Stadthaus in Lörrach zentrumsnah mit vier Wohnungen u. idyllischem Innenbereich

  • Hausansicht
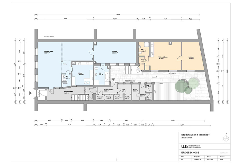
Bei unserer Immobilie handelt es sich um ein zentrumsnah gelegenes, mehrstöckiges Stadthaus aus dem Jahr 1900 mit zwei kleinen Gebäudeanbauten im Gartenbereich (Hinterhof). In den alten Grundrissplänen werden die zwei Gebäudeteile als „Hofhaus“ und „Nebenhaus“ bezeichnet.

Das eigentliche Hauptgebäude zur Straßenseite hin beherbergt drei große Wohnungen mit jeweils
ca. 116 m² im EG und OG, sowie ca. 114 m² im DG. Im Nebengebäude dem sogenannten Hofhaus befindet sich eine weitere Wohnung mit ca. 56 m² dort befand sich früher der Bühnenbereich für die Konzertveranstaltungen. Das kleine Nebenhaus im Gartenbereich beinhaltet ausschließlich Nutzräume/ Lagerflächen, wobei die Fläche darüber zu einer wunderschönen Dachterrasse ausgebaut wurde.
Der Dachstuhl (Speicher) über dem Nebenhaus wurde 2015 für Wohnzwecke ausgebaut und komplett neu gedeckt. Die kleine Dachwohnung liegt auf der Ebene der OG Wohnung, beide sind durch eine weitere wunderschöne Dachterrasse voneinander getrennt.

Das Haus ist komplett vermietet, die Wohnungen sind großzügig, hohe Räume, sehr hell. Die Wohnflächen belaufen sich insgesamt auf ca. 400 m². In dieser Gesamtfläche ist der ausgebaute Speicherraum über dem Hofhaus nicht mitgerechnet, sie ist in der Nutzfläche enthalten. Ein kleiner aber idyllischer Innenhof komplettiert die gemütliche Wohnatmosphäre. EnergieausweisArt: VerbrauchsausweisGültig bis: 06.11.2033Endenergieverbrauch: 128.30 kWh/(m²*a)Baujahr lt. Energieausweis: 2015Wesentlicher Energieträger: GasKlasse: D
Das 1900 erbaute Wohngebäude befindet sich in einem sehr gepflegten Zustand. 1996 beginnend wurden sehr vielen Umbauten, Sanierungs- als auch Modernisierungsmaßnahmen durchgeführt. Wir haben die einzelnen Maßnahmen chronologisch aufgelistet:

Hauptwohnung im Erdgeschoss:
- 2010 Wohnungsumbau/Renovationsarbeiten: Erneuerung Fenster mit Wärmeschutzglas, kompl. Bodendämmung, Parkett, Badezimmer neu;
- 2018 Einbau neuer Durchlauferhitzer Stiebel Eltron

Wohnung im „Hofhaus“:
- 2013 komplette Dachsanierung (Dämmung u. Ziegel)

Hauptwohnung Obergeschoss:
- 2002-2003 Umbau: Bad, Elektro, Küche
- 2013 neue Fenster 2-fach verglast, Wärmeschutzglas
- 2014 Dachkammer Umbau/Renovation

Hauptwohnung Dachgeschoss:
- 1999 neue Fenster u. neue ALNO-Einbauküche
- 2000 Sanierung Mansardendach, neue Tapeten u. Anstrich in der Wohnung
- 2015 Dachdämmung (Boden)
- 2015 neue Heizung/Gastherme Brötje Brennwertgerät

Allgemeine Sanierungsarbeiten:
- 1996 Fassadenanstrich Front
- 2000 Einbau einer neuen Briefkastenanlage
- 2009 Umbau Heizungsanlage
- 2013 Erneuerung Kaltwasserleitung im Keller
- 2013/2014 Fassadenanstrich
- 2014 Laubenergänzungsarbeiten u. Laubeholzboden
- 2015 Parkett- u. Renovierungsarbeiten allgemein
- 2017 Flachdachsanierung
- 2018 neue Terrasse im Erdgeschoss u. auf dem „Nebenhaus“
- 2021 Haussockel Straßenseite saniert
- 2023 Sanierung der Dachterrasse zwischen EG und „Hofhaus“

Die Bodenflächen der Hauptwohnungen sind überwiegend mit Originalparkett massiv in Fischgrät oder mit Holzdielen belegt und sehr gut erhalten. Die Bäder und Küchen sind wunderschön saniert und zweckmäßig ausgestattet. Jede Wohnung verfügt über eine Einbauküche.
Die Kreisstadt ist mit rund 49.000 Einwohnern ein kulturelles und wirtschaftliches Zentrum im Dreiländereck Deutschland, Frankreich, Schweiz sowie Teil der Metropolregion Basel.

Lörrach ist bekannt als Einkaufsstadt mit einer großzügig angelegten Fußgängerzone, in der die Plätze durch Kunstwerke namhafter Künstler, wie beispielsweise Stephan Balkenhol, Bruce Naumann oder Beatrix Sassen, ein unverwechselbares Gesicht bekommen haben. Das Veranstaltungs- u. Kulturzentrum der Stadt Lörrach, der Burghof, mit seiner eigenwilligen Architektur ist seit 1998 ein markanter Anziehungspunkt in der Innenstadt. Sein ambitioniertes Kulturprogramm umfasst Musik und Gesang aus Rock, Pop, Jazz und Klassik, internationalen Tanz, Kabarett, Literatur, (Kinder-) Theater und vieles mehr. Das STIMMEN-Festival verwandelt Lörrach seit 1994 jedes Jahr im Sommer für mehrere Wochen in eine Bühne für Solisten und Ensembles der internationalen Gesangsszene.
Auch der Wirtschafts- und Dienstleistungsstandort Lörrach kann sich sehen lassen. Die berühmte Milka-Schokolade ist „Made in Lörrach“, auch namhafte Unternehmen aus den Bereichen Textil, Maschinenbau und der Automobilzulieferindustrie haben sich erfolgreich entwickelt und bieten ein breites Spektrum an Arbeitsplätzen.

Apropos Veranstaltungs-u. Kulturscene. . . unser Stadthaus beherbergte mit dem „Roten Hahn“ oder „Coq Rouge“ eine der letzten Kulturkneipen Lörrachs. Zuletzt fanden dort bis 2009 im Erdgeschoss
wöchentlich Konzerte statt. Zu Anfang war der Rote Hahn auch eine Galerie, so waren in den oberen Räumen abwechselnde Ausstellungen von bekannten Künstlern der Region zu sehen.

Unser Stadthaus liegt sehr zentrumsnah, nach nur drei Gehminuten stehen Sie in der Fußgängerzone Lörrachs und von dort ist es nur noch ein kurzer Weg bis zum Lörracher Hauptbahnhof. Die nächste Bushaltestelle ist nur 150 Meter von der Haustüre entfernt.
Man wäre nicht unbedingt auf ein Auto angewiesen. Damit kommt dem Umstand, dass es zum Wohnhaus weder Garagen noch Stellplätze gibt, nicht die wesentliche Bedeutung zu.
Das Mehrfamilienwohnhaus ist aktuell komplett vermietet, wobei die mittlere Hauptwohnung von den Eigentümern zu eigenen Wohnzwecken genutzt wird. Für das gesamte Wohnhaus ist eine Sollmiete in Höhe von p.a. EUR 57.000,00 kalkulierbar.

Das Wohnhaus unterliegt nicht dem Denkmalschutz.

Die Immobilie wird Ihnen ausschließlich von ALTMANN Immobilien GmbH angeboten.
© 2026 ALTMANN Immobilien GmbH onOffice Software