Offene 2-Zimmer-Wohnung (116 m²) in Stadthaus in Lörrach zentrumsnah mit idyllischem Innenhof

  • Hausansicht
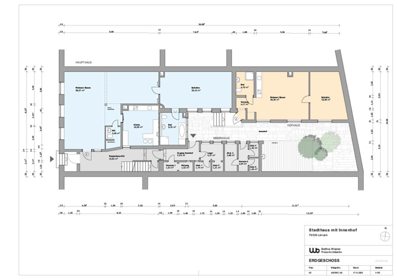
Unsere 2-Zimmerwohnung mit ca. 116 m² Wohnfläche liegt im Erdgeschoss (Hochparterre) eines Stadthauses mitten in Lörrach.

Der Wohnungseingang befindet sich gleich linker Hand im großzügigen Treppenhaus direkt nach dem Hauseingang.

Zunächst betreten wir den mit 60 m² großen, offenen Wohn- und Essbereich. Die Fenster zeigen hier zur Straße hin. Durch das Hochparterre sind sie nicht direkt einsehbar. Die Küche mit integrierter, großzügiger Einbauküche ist innenliegend.

Im "hinteren" Bereich der Wohnung ist das fast 30 m² große Schlafzimmer mit Fenstern zum Innenhof hin.

Das Badezimmer (mit Wanne u. Dusche) liegt ebenfalls zum Innenhof hin. Dieses Hauptbad ist vom Schlafzimmer aus begehbar. Das Gäste-WC liegt gleich im Eingangsbereich. Ein kleiner Abstellraum ist hier anhängend (siehe beigefügter Grundriss). EnergieausweisArt: VerbrauchsausweisGültig bis: 06.11.2033Endenergieverbrauch: 128.30 kWh/(m²*a)Baujahr lt. Energieausweis: 2015Wesentlicher Energieträger: GasKlasse: D
Das Wohngebäude befindet sich in einem sehr gepflegten Zustand. 1996 beginnend wurden sehr viele Umbauten, Sanierungs- als auch Modernisierungsmaßnahmen durchgeführt. In unserer Wohnung wurden 2010 sämtliche Fenster erneuert mit Wärmeschutzglas, der Boden gedämmt, neues Parkett verlegt und das Badezimmer erneuert.
Die Kreisstadt ist mit rund 49.000 Einwohnern ein kulturelles und wirtschaftliches Zentrum im Dreiländereck Deutschland, Frankreich, Schweiz sowie Teil der Metropolregion Basel.

Lörrach ist bekannt als Einkaufsstadt mit einer großzügig angelegten Fußgängerzone, in der die Plätze durch Kunstwerke namhafter Künstler, wie beispielsweise Stephan Balkenhol, Bruce Naumann oder Beatrix Sassen, ein unverwechselbares Gesicht bekommen haben. Das Veranstaltungs- u. Kulturzentrum der Stadt Lörrach, der Burghof, mit seiner eigenwilligen Architektur ist seit 1998 ein markanter Anziehungspunkt in der Innenstadt.

Unser Stadthaus beherbergte mit dem „Roten Hahn“ oder „Coq Rouge“ eine der letzten Kulturkneipen Lörrachs. Zuletzt fanden dort bis 2009 im Erdgeschoss wöchentlich Konzerte statt. Zu Anfang war der Rote Hahn auch eine Galerie, so waren in den oberen Räumen abwechselnde Ausstellungen von bekannten Künstlern der Region zu sehen.

Die Wohnung in unserem Stadthaus liegt sehr zentrumsnah, nach nur drei Gehminuten stehen Sie in der Fußgängerzone Lörrachs und von dort ist es nur noch ein kurzer Weg bis zum Lörracher Hauptbahnhof. Die nächste Bushaltestelle ist nur 150 Meter von der Haustüre entfernt. Man wäre nicht unbedingt auf ein Auto angewiesen. Damit kommt dem Umstand, dass es zur Wohnung weder Garagen noch Stellplätze gibt, nicht die wesentliche Bedeutung zu.
Unserer Wohnung ist weder eine Garage noch ein Stellplatz zugeordnet. Parkmöglichkeiten bietet die Stadt Lörrach über eine Anwohnerparkkarte.

Die Einbauküche ist in der Kaltmiete bereits enthalten.

Die Bruttowarmmiete i.H. von 1.540,00 € stellt sich also folgendermaßen zusammen: Kaltmiete Wohnung 1.350,00 € zzgl. Betriebskostenvorauszahlungen 190,00 €.

Bitte teilen Sie uns bei Kontaktaufnahme in Ihrem eigenen Interesse Ihre Handynummer mit. Besichtigungen vereinbaren wir in der Regel telefonisch nach einem persönlichen Gespräch. Vielen Dank für Ihr Verständnis.
© 2026 ALTMANN Immobilien GmbH onOffice Software