Immobilien zum Kauf

Nachfolgend finden Sie unsere aktuellen Kaufangebote:

4- Zimmerwohnung mit Südbalkon u. TG- Stellplatz zentral in Lörrach-Stetten

  • Südansicht Wohngebäude
Zum Verkauf steht eine gepflegte und lichtdurchflutete 4-Zimmer-Wohnung im 2. Obergeschoss eines im Jahr 1996 erbauten Mehrfamilienhauses mit insgesamt 11 Wohneinheiten. Das Wohnhaus befindet sich in sehr zentraler und zugleich ruhiger Lage im beliebten Lörracher Stadtteil Stetten.
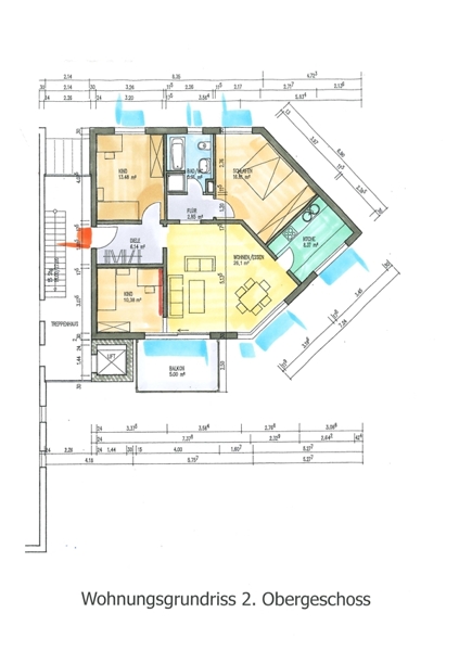
Der Hauseingang sowie die Zufahrt zur Tiefgarage liegen auf der Nordostseite des Gebäudes. Die Wohnung ist komfortabel sowohl über das Treppenhaus als auch über einen zentral angeordneten Personenaufzug erreichbar.
Ein besonderes Highlight dieser Immobilie ist der außergewöhnliche Grundriss: Die Außenwände laufen nach Süden hin in einer dreieckigen Form zusammen, was der Wohnung und dem ganzen Gebäude einen individuellen architektonischen Charakter verleiht. Dadurch entstehen im Wohn-/Essbereich sowie in einem der Schlafzimmer diagonal verlaufende Wände, die für ein modernes Raumgefühl und spannende Gestaltungsmöglichkeiten sorgen.
Die Wohnung einigt sich ideal für eine kleine Familie und bietet:
- ein Elternschlafzimmer
- zwei Kinderzimmer resp. Arbeitszimmer
- ein geräumiges Wohn- u. Esszimmer
- eine großzügige Küche
- ein Badezimmer

Vom Wohn- und Essbereich aus gelangt man auf den großzügigen, nach Süden bzw. Südwesten ausgerichteten Balkon, der durch den darüberliegenden Balkon vollständig überdacht ist und somit auch bei wechselhaftem Wetter genutzt werden kann.
Dank Außenwänden in drei Himmelsrichtungen ist die Wohnung außergewöhnlich hell und freundlich. Große Fensterfronten sorgen den ganzen Tag über für viel Tageslicht. EnergieausweisArt: VerbrauchsausweisGültig bis: 31.01.2028Endenergiebedarf: 95.40 kWh/(m²*a)Endenergieverbrauch: 95.40 kWh/(m²*a)Baujahr lt. Energieausweis: 1996Wesentlicher Energieträger: Erdgas leichtKlasse: E
Der Dielenbereich sowie die Wohn- und Schlafräume sind durchgehend mit einem hellen, einheitlichen Parkettboden ausgestattet und verleihen der Wohnung ein freundliches und hochwertiges Ambiente.
Große, isolierverglaste Kunststofffenster in Weiß sorgen für eine ausgezeichnete Belichtung und unterstreichen den hellen Charakter der Wohnung. Küche und Badezimmer sind mit weiß-grau marmorierten Keramikfliesen versehen und fügen sich harmonisch in das Gesamtbild ein.
Das Badezimmer ist komfortabel ausgestattet und verfügt sowohl über eine Dusche als auch über eine Badewanne.
Der nahezu quadratische Balkon ist mit weißen Bodenfliesen ausgestattet und bietet durch das umlaufende Geländer mit Sichtschutz ein hohes Maß an Privatsphäre. Die Balkontür wurde im Jahr 2022 erneuert.
Die moderne Einbauküche aus dem Jahr 2022 präsentiert sich in zeitlosem Weiß mit einer grauen Arbeitsplatte. Zwei gegenüberliegende Küchenzeilen bieten überdurchschnittlich viel Stauraum sowie großzügige Arbeitsflächen – ideal für Kochbegeisterte.
Im Untergeschoss des Hauses befinden sich neben den KFZ-Stellplätzen die zugehörigen Kellerräume, der Heizraum, ein Wasch- und Trockenraum sowie ein separater Müllraum. Die Waschmaschine kann bequem im gemeinschaftlichen Waschraum untergebracht werden.
Diese Wohnung überzeugt durch ihre besondere Architektur, die helle Wohnatmosphäre und die attraktive Lage. Eine Immobilie mit Charakter und hohem Wohnkomfort.
Lörrach ist eine Kreisstadt im Südwesten Baden-Württembergs. Die Stadt mit seinen ca. 50.000 Einwohnern, wird gerne auch als die „Hauptstadt“ des Markgräflerlandes bezeichnet.
Sie ist kulturelles und wirtschaftliches Zentrum im sogenannten Dreiländereck Deutschland-Frankreich-Schweiz sowie Teil der Metropolregion Basel.

Stetten ( . . . ein Stadtteil)
Das ursprüngliche selbständige (Städtchen) Stetten wurde am 01.04.1908 Stadtteil von Lörrach. Stetten liegt mit seinen 461 Hektar Gemarkungsfläche und ca. 13.000 Einwohnern ganz im Süden Lörrachs, unmittelbar angrenzend an die Schweizer Gemeinde Riehen. Gemessen an der Einwohnerzahl ist Stetten auch der größte Stadtteil Lörrachs. Stetten war früher der ursprünglich Kern Lörrachs. Das ist auch der Grund für die hier vollständige und ausgeprägte Infrastruktur. Stetten ist deshalb als Wohngebiet sowohl bei Familien als auch bei älteren Menschen sehr nachgefragt. Unsere Wohnung liegt im Zentrum Stettens.

Die komplette Grundversorgung im Radius von max. 100 Metern (Bäcker, Metzger, Lebensmittel EZH, Apotheke, Post und Bank usw.). Hinzu kommt die vorhandene Anbindung an das ÖPNV (das Netz des öffentlichen Nachverkehrs), die besser nicht sein könnte. So ist der Stadtteil mit zwei Haltestellen („Lörrach Dammstraße“ und „Lörrach Stetten“) über die S-Bahnlinie 5 und 6 der Regio S-Bahn Basel mit Basel, Weil am Rhein und Schopfheim verbunden. Dazu kommen die Buslinien 6, 7, 8 und 16 des Regio Verkehrsverbund Lörrach. Sie verbinden Stetten mit den anderen Stadt- und Ortsteilen Lörrachs sowie mit Weil am Rhein und der Schweizer Gemeinde Riehen.
In Stetten befinden sich zwei Grundschulen (Fridolin- u. Neumattschule), eine Haupt- u. Werkrealschule (Neumattschule), die Freie Evangelische Schule (Grund-, Haupt-, Realschule und Gymnasium) sowie eine Freie Waldorfschule. Ebenso gibt es in Lörrach-Stetten verschiedene Kindergärten (St. Anna, St. Fridolin und das Wichernhaus) sowie die Kindertagesstätten (Guter Hirte e.V. und die priv. Kaltenbachstiftung).
Ergänzend zum bestehenden Grundriss ist anzumerken, dass das zweite Kinderzimmer aktuell über das Wohn- und Esszimmer erreichbar ist und somit als gefangenes Zimmer gilt. Die Trennung zum Wohnbereich erfolgt über ein eingebautes Schiebetürelement. Eine direkte Erschließung über den Flur wäre mit geringem Aufwand realisierbar.

Die 2022 komplett neu eingebaute Einbauküche (EBK) hatte einen Kaufpreis von ca. EUR 15.000,00.

Zu unserer Wohnung gehört sowohl ein Kellerraum als auch ein Tiefgaragenstellplatz, resp. der untere Stellplatz eines Doppelparkers.

EBK und TG- Stellplatz sind im vorstehenden Kaufpreis enthalten.

Die Wohnung ist derzeit noch vermietet.


Diese Immobilie wird Ihnen ausschließlich von ALTMANN Immobilien GmbH angeboten.
© 2026 ALTMANN Immobilien GmbH onOffice Software