Immobilien zum Kauf

Nachfolgend finden Sie unsere aktuellen Kaufangebote:

Dreifamilien-Wohnhaus in bevorzugter Wohnlage mit unverbaubarer Aussicht

  • Südansicht Hauptwohnng mit Garten
Das gepflegte Mehrfamilienhaus umfasst drei abgeschlossene Wohneinheiten. Vorgelagert befindet sich eine Garagenanlage mit drei Garagen sowie drei zusätzlichen Stellplätzen. Jeder Wohnung sind eine Garage und ein Stellplatz fest zugeordnet. Die drei Ebenen des Hauses sind über ein separates Treppenhaus erschlossen. Alle Wohnungen verfügen über großzügige, funktionale Grundrisse und sind dank der Hanglage gut belichtet. Jede Einheit besitzt ihren eigenen Charakter und mindestens einen privaten Außenbereich mit Blick ins Tal. Die Nordausrichtung sorgt selbst in heißen Sommern für ein angenehmes Raumklima – bis ins Dachgeschoss. EnergieausweisArt: VerbrauchsausweisGültig bis: 08.08.2034Endenergieverbrauch: 135.00 kWh/(m²*a)Baujahr lt. Energieausweis: 2004Wesentlicher Energieträger: GasKlasse: E
Helle Gartenwohnung mit Teich, Terrasse und Sitzplatz
Die 3- Zimmerwohnung im Erdgeschoss vermittelt den Charakter einer klassischen Gartenwohnung. Von der Küche gelangt man über eine breite Terrassentür direkt auf die über 20 m² große Terrasse. Angrenzend wurde ein kleiner Teich angelegt, der dem Außenbereich eine besondere Atmosphäre verleiht. Zusätzlich befindet sich in etwa zehn Metern Entfernung – auf dem Dach der ersten Garage – ein weiterer kleiner Sitzplatz, der exklusiv dieser Wohnung zugeordnet ist. Die Küche bietet mit Ihren fast 16 m² ausreichend Platz für einen separaten Essbereich. Das großzügige Wohnzimmer (ca. 26 m²) ist nach Nordosten ausgerichtet und verfügt über drei breite Fensterflächen, die für viel Tageslicht sorgen. Die drei Zimmer sowie die Küche sind über einen zentralen Flur erreichbar. Das innenliegende Badezimmer wird durch eine Waschküche und einen kleinen Abstellraum außerhalb der Wohnung ergänzt. Die Wohnräume sind überwiegend mit Teppichboden ausgestattet, Küche und Bad sind gefliest.

Familienwohnung mit Garten und wunderschöner Aussicht
So stellt sich unsere Hauptwohnung dar, talseits im 1. Obergeschoss des Hauses und auf der Südseite auf dem Niveau einer sehr schönen Gartenterrasse und einem nahezu flachen Gartengrundstück. Die Wohnung hat 4 Zimmer, eine große Einbauküche mit angebautem, direkt zugänglichem Wintergarten, ein großes Badezimmer und eine kleine Gästetoilette. Die gesamte Wohnfläche der Wohnung beträgt fast 119 m². Die Balkonfläche ist darin nur zur Hälfte mit knapp 7 m² enthalten.
Nach dem Betreten der Wohnung gelangt man in einen abgewinkelten Flurbereich, der jeden Raum in der Wohnung separat erschließt. Das Wohnzimmer und die große Einbauküche mit dem bereits angesprochenen Wintergarten liegen sich im Grundriss gegenüber. Das nach Norden ausgerichtete Wohnzimmer besticht mit einer Balkonfront, die sich über die gesamte Raumbreite erstreckt. Auch die Fensterfront mit der auf den Balkon führenden Terrassentür nimmt die gesamte Wohnzimmerbreite ein. Der Balkon ist zusätzlich über den abgewinkelten Flurbereich zugänglich. Die drei übrigen Zimmer sind nach Nordosten ausgerichtet. Das außenliegende Badezimmer ist belichtet und belüftet. Die Einbauküche ist komplett ausgestattet, funktional und über ihre gesamte Breite zum Wintergarten geöffnet, wodurch ein heller und großzügiger Essbereich entsteht. Für den Wintergarten existiert eine sehr interessante Planung zur Erweiterung (Anbau), bei der auch der Küchenbereich der darüberliegenden Dachgeschosswohnung einbezogen werden könnte. Die Wohnung ist größtenteils gefliest. Im Treppenhaus gibt es einen kleinen zur Wohnung gehörenden Kellerraum.
Diese Wohnung ist aktuell leerstehend und kann kurzfristig bezogen werden.

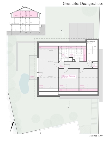
Heimeliges Wohnen mit Balkon
Hier befinden wir uns im Dachgeschoss unseres Mehrfamilienhauses. Die DG- Wohnung besteht aus 3 Zimmern, Küche, Bad und einer „versteckten“ Gäste-Toilette. Es handelt sich um eine echte Dachgeschosswohnung mit durchgehender Dachschräge. Die DIN- Wohnfläche beträgt knapp 66 m², darin ist der Balkon mit nur einem Viertel seiner Nutzfläche (1,8 m²) enthalten. Dieser befindet sich an der östlichen Giebelseite des Wohnhauses. Die Wohnung ist durchgehend mit Teppichen ausgelegt, Küche und Badezimmer sind gefliest.
Zwischen den Ausläufern des Schwarzwaldes und des Wiesentals liegt die Kreisstadt Lörrach mit ihren knapp 52.000 Einwohnern. Im Südwesten erhebt sich der Tüllinger Berg, der an die Schweiz grenzt. Nordwestlich davon liegt das Stadt-Wahrzeichen „Röttler Burg“. Im Osten, am Ausläufer des Dinkelbergs und an dessen Nordseite, liegt das Wohngebiet Hünerberg. Hier trifft sich mediterranes Klima mit hervorragender Infrastruktur und bietet einzigartige Lebens- und Wohnqualität, weswegen Lörrach gerne auch als Hauptstadt des Markgräflerlandes bezeichnet wird.
Das Stadtgebiet breitet sich auf einer Fläche von knapp 40 Quadratkilometern aus und unterteilt sich in Kernstadt und die drei Stadtteile Stetten, Tumringen, Tüllingen. Das Haus an der Breslauerstraße befindet sich in der Kernstadt im Stadtteil Lörrach-Ost und gehört aufgrund seiner Hanglage, der herrlichen Sicht über das Tal und seiner schnellen Anbindung an die Infrastruktur zu den beliebtesten Wohnlagen in Lörrach.
Der Hünerberg ist ein reines Wohngebiet, in dem sich Ein- bis Dreifamilienhäuser befinden. Es zeichnet sich durch seine offene Bebauungsstruktur aus und ist deswegen von vielen Grünräumen geprägt, was das Wohngebiet bei Familien beliebt macht. Bahnhof, Schulen, Kleinversorger und Naherholungsgebiete liegen im Umkreis von 750 Metern, so ist man zeitlich zentral, aber im Grünen gelegen.
Knapp unter der Kuppe und an der Nordseite des Hünerbergs, präsentiert sich das Haus in unverbaubarer Aussichtslage.
Das Wohnhaus befindet sich in einer Anliegerstraße, die in einer Sackgasse endet. Sie wird nur von Anwohnern und Besuchern befahren - eine ruhige Lage ist somit garantiert!
Die im ersten Obergeschoss liegende Wohnung ist die größte Wohnung im Haus, die über ihre Gesamtwohnfläche, dem ebenerdigen Zugang in den südlich gelegenen Gartenbereich und ihrer Infrastruktur nahezu alle Ansprüche an eine Familie erfüllt. Diese Wohnung ist, wie bereits erwähnt, aktuell leerstehend und kann sofort bezogen werden. Die beiden Wohnungen im Erd- und Dachgeschoss sind gut vermietet. Somit liegen die besten perspektivischen Voraussetzungen für eine junge Familie vor.

Diese Immobilie wird Ihnen ausschließlich von ALTMANN Immobilien GmbH angeboten.
© 2026 ALTMANN Immobilien GmbH onOffice Software