Immobilien zur Miete

Nachfolgend finden Sie unsere aktuellen Mietangebote:

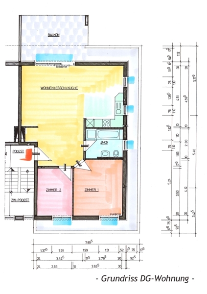
Helle 3-Zimmer "Penthouse"-Wohnung mit Südwestbalkon in Grenzach zu vermieten

  • Balkon
Unsere 3-Zimmer Penthouse-Wohnung liegt im 2. Obergeschoss eines Mehrfamilienhauses in einer ruhigen Wohngegend in Grenzach-Wyhlen in unmittelbarer Nachbarschaft zum Emilienpark.

Der Südwest ausgerichtete Wohn- und Essbereich ist mit seinen knapp 40 m² sehr großzügig geschnitten. Durch seine Lage ist er den ganzen Tag über sonnendurchflutet. Am höchsten Punkt haben wir hier eine Deckenhöhe von 3,85 m (Pultdach), was den Raum noch majestätischer wirken lässt. Eine wunderbare Ergänzung zum Wohnraum stellt der hier anschließende, ca. 17 m² große Balkon dar. Dieser kann durch seine beinahe quadratische Bodenfläche optimal genutzt werden.

Der Wohnbereich ist zur Diele hin offen und beherbergt gleich beim Wohnungseingang eine Gardarobenecke. Die Vorrichtungen für eine Einbauküche in L-Form befinden sich rechter Hand.

Vom Balkon aus führt ein schmaler Umlauf außen um die komplette Wohnung herum. Balkon und Balkonumlauf haben eine Grundfläche von ca. 40 m². Diese ist mit 25% (ca. 10 m²) in der vorstehenden Wohnfläche enthalten.

Die beiden zusätzlichen Zimmer liegen im nordöstlichen Teil unserer Wohnung und bieten durch jeweils doppelflügelige Balkontüren Zugang zum erwähnten Umlauf. Das größere der beiden Zimmer eignet sich mit seinen beinahe 15 m² als Schlafzimmer. Das zweite Zimmer hat ca. 10 m² und kann somit als Büro oder Hobbyraum genutzt werden.

Das Badezimmer, welches vom Grundriss her zentral liegt und somit von jedem Raum schnell erreichbar ist, ist außenliegend und sowohl mit einer Dusche als auch mit einer Badewanne ausgestattet. EnergieausweisArt: VerbrauchsausweisGültig bis: 15.02.2028Endenergieverbrauch: 88.60 kWh/(m²*a)Baujahr lt. Energieausweis: 2000Wesentlicher Energieträger: GasKlasse: C
In allen Wohnräumen finden wir Steinboden in Holzoptik vor. Die Wände sind mit Raufasertapete versehen und weiß gestrichen. Das Badezimmer ist mannshoch gefliest mit hellen, leicht lachsfarben marmorierten, modernen Fliesen. Der Balkon sowie der gesamte Umlauf ist mit großen Außenfliesen belegt und nicht überdacht. In der gesamten Wohnung ist Fußbodenheizung verlegt.
Die Stadt Grenzach-Wyhlen liegt im sogenannten Dreiländereck Schweiz/Frankreich/Deutschland im äußersten Südwesten der Bundesrepublik Deutschland, direkt am Hochrhein und damit an der Schweizer Grenze mit eigenem Grenzübertritt. So ist z.B. die Schweizer Großstadt Basel mit seinem reichhaltigen kulturellen Angebot, den vielen Einkaufsmöglichkeiten und attraktiven Arbeitsplätzen in der Chemie keine 10 Autominuten entfernt. Die Verkehrsanbindungen im öffentlichen Personen-Nahverkehr sind bestens strukturiert. So pendelt auch ein großer Teil der ca. 14.000 in Grenzach lebenden Menschen täglich in die Schweiz zur Arbeit. Aber auch in Grenzach selbst haben sich in den letzten Jahren viele weltweit tätige und bekannte Unternehmen niedergelassen. BASF, Roche und die Dürr AG sind nur einige Beispiele.
Bei all den wirtschaftlichen Aktivitäten kommt die Freizeitgestaltung hier nicht zu kurz. Neben den natürlichen Gegebenheiten (Schwarzwald, Schweizer Alpen, Elsass und angrenzende Naturparks) findet man in Grenzach alle Annehmlichkeiten der modernen Freizeitgestaltung.
Die heutige Gemeinde Grenzach-Wyhlen entstand am 1. Januar 1975 aus den beiden selbständigen Gemeinden Grenzach und Wyhlen im Zuge der baden-württembergischen Gemeindereform. Unsere Immobilie befindet sich im Ortsteil Grenzach nur 2 Gehminuten von seinem Zentrum entfernt. Die Grundversorgung mit verschiedenen Geschäften sowie die schulische und medizinische Versorgung sind vor Ort gegeben.
Zu der Wohnung gehören ein Kellerraum und ein Tiefgaragenstellplatz. Der PKW-Stellplatz kommt mit 60,00 € zu der anfänglich erwähnten Kaltmiete der Wohnung hinzu. Die Einbauküche ist nicht Bestandteil des Mietvertrages.

Die Gesamtbruttomiete i.H. von 1.460,00 € stellt sich folgendermaßen zusammen:
Kaltmiete 1.100,00 € zzgl. NK (Vorauszalungen) 300,00 € zzgl. TG-Stellplatz 60,00 €.

Wir bitten Sie ausdrücklich um Angabe Ihrer Handy- oder Festnetznummer, damit wir Sie zwecks Besichtigungstermin telefonisch erreichen können. Vielen Dank.
© 2026 ALTMANN Immobilien GmbH onOffice Software