Objektreferenzen

3-Zimmer-Dachgeschoss-Wohnung in der City

  • Hauseingang
Unsere Dachgeschoss-Wohnung befindet sich in einem zentrumsnah gelegenen, mehrstöckigen Stadthaus aus dem Jahre 1870. Insgesamt befinden sich 3 Wohnungen im Haus. Das Wohnhaus wurde 2003 umfangreich saniert und teilweise umgebaut. Dabei behielt das Haus sein Flair. Der Eingang des Hauses liegt auf der Ostseite, der Straßenseite. Auf der Rückseite des Wohnhauses, nach Westen hin, gibt es den klassischen kleinen Innenhofbereich.

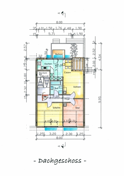
Bei der Umbaumaßnahme 2003 erhielt das Wohnhaus ein komplett neues Dach, dabei wurde die Dachgeschoßwohnung auf beiden Dachseiten jeweils um eine große Dachgaube ergänzt. Auf der Westseite wurde zusätzlich ein Balkon angebaut. Die Wohnung hat insgesamt drei Zimmer, wobei das Wohnzimmer mit Essbereich und Küche offen gestaltet ist. Das Wohnzimmer ist nach Westen ausgerichtet. Die beiden übrigen Zimmer liegen zur Straßenseite hin. Zwischen dem Küchenbereich und den beiden Zimmern, praktisch im Zentrum der Wohnung, befindet sich das Badezimmer. Durch die breiten Dachgauben gibt es weniger schräge Deckenflächen. Die Raumhöhe liegt dabei deutlich über der Norm. Die Dachwohnung ist sehr hell, denn der Wohn- Essbereich hat eine lange durchgehende Fensterfront nach Westen mit Blick auf die Stadtkirche in Lörrach. Die Nutzfläche des Balkons beträgt ca. 3,5 m² und ist hälftig in der Wohnfläche enthalten. Zur Wohnung gibt es einen Kellerraum und eine Fahrradabstellmöglichkeit. EnergieausweisArt: VerbrauchsausweisGültig bis: 29.09.2024Endenergieverbrauch: 147.00 kWh/(m²*a)Baujahr lt. Energieausweis: 2003Wesentlicher Energieträger: GasKlasse: E
Die Böden in der Wohnung sind mit Laminat belegt bzw. im Badezimmer und im Küchenbereich hell gefliest.

Die mitvermietete Einbauküche wurde 2017 mit neuen Geräten ausgestattet.
Innenstadtlage, nur 300 Meter vom Stadtzentrum (Marktplatz) entfernt.
Man wäre nicht unbedingt auf ein Auto angewiesen. Damit kommt dem Umstand, dass es zur Wohnung weder eine Garage noch einen Stellplatz gibt, nicht die wesentliche Bedeutung zu.
Zudem befinden sich in jeder Seitenstraße Parkmöglichkeiten.
In nur 5 Gehminuten gelangt man ins Zentrum von Lörrach und somit zum Busbahnhof (Anbindung in jede Richtung) und auch zum Hauptbahnhof. Die nächste Bushaltestelle in Richtung Innenstadt, Randgebiete, Inzlingen und Rheinfelden befindet sich 2 Straßenecken entfernt.
Die Wohnung ist noch bis 31.01.2020 vermietet. Ein früherer Einzugstermin ist nicht möglich.
Über den ein oder anderen Einrichtungsgegenstand sind die jetzigen Mieter gerne bereit, sich zwecks Veräußerung mit dem Nachmieter zu verständigen.

In der vorstehenden Warmmiete ist die mtl. Miete für die EBK i.H. von € 50,00 bereits enthalten.
© 2026 ALTMANN Immobilien GmbH onOffice Software