Objektreferenzen

Maisonette-Eigentumswohnung in bester Wohnlage in Inzlingen

  • Hauseingang Whg.1
Bei unserem Immobilienangebot handelt es sich um eine Eigentumswohnung (Maisonette) in einem Wohnhaus mit insgesamt nur zwei Wohneinheiten. Es wurde 1996 in Südhanglage errichtet. Der im Grundbuch eingetragene Grundstücksanteil für das Wohngebäude beträgt 415 m² davon entfällt ein Miteigentumsanteil von ca. 263 m² auf unsere Eigentumswohnung.

Ursprünglich war das Wohnhaus als Einfamilienhaus konzipiert mit einem durchgängigen Treppenhaus. Bei der späteren tatsächlichen Bauausführung wurden dann zwei baurechtlich ab- geschlossene Wohnungen errichtet. Dabei wurde das bestehende Treppenhaus baulich verändert, um die Abgeschlossenheit der beiden Wohnungen zu gewährleisten.

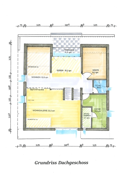
Zum Verkauf steht die Maisonettewohnung OG/DG mit einer Wohnfläche von ca. 185 m². Die Wohnung ist in den nachfolgenden Grundrissunterlagen mit Nr. 1 bezeichnet.

Der Eingang in die Wohnung befindet sich auf der Nordseite des Wohnhauses, ebenerdig auf dem Niveau der Anliegerstraße. Direkt neben dem Wohnungseingang befindet sich im Haus eine Doppelgarage. Die rechte Garagenhälfte gehört zu unserer Wohnung und hat eine direkte Türverbindung in den Flur- und Dielenbereich.

Der Grundriss der Wohnung erstreckt sich über insgesamt drei Wohnebenen, Erd- und Dachgeschoss, dies jeweils im Split-Level-Format mit halbversetzten Geschossebenen. Im Dachstuhl (räumlich über der Doppelgarage) befindet sich eine offene Wohngalerie mit ca. 33 m² Wohnfläche. Auf der Eingangsebene sind ein Wohn-Esszimmer mit insgesamt fast 29 m², ein Gästezimmer, eine Gästetoilette und die Einbauküche angesiedelt. Im Stockwerk darunter befinden sich drei Einzelzimmer (jeweils ca. 18 m², 16 m² und 9 m²) und mittig ein Badezimmer.

Sowohl im Obergeschoss als auch in diesem darunterliegenden Wohngeschoss ist jeweils in der Mitte des Grundrisses eine Dachterrasse bzw. ein überdachter Balkon vorhanden. Die Fensterfronten sind dort breit und bodentief, sodass Sie auf beiden Stockwerken die Balkon- und Terrassenfläche komplett zum Wohnraum hin öffnen können. Der Blick von diesen Terrassen ist unglaublich schön. EnergieausweisArt: VerbrauchsausweisGültig bis: 12.03.2032Endenergieverbrauch: 91.90 kWh/(m²*a)Baujahr lt. Energieausweis: 2011Wesentlicher Energieträger: Erdgas schwerKlasse: C
Bereits an der Außenanlage kann man die Sorgfalt erkennen, welche die Eigentümer unserer Immobilie zukommen lassen. Ein gepflegter Gartenbereich, die saubere Einfahrt und ein modern gestalteter Hauseingang heißen Sie willkommen.

Dieser Eindruck setzt sich im Inneren des Hauses fort. Die Wohnung ist modern und hochwertig ausgestattet. Die helle, sehr offene Raumgestaltung ist das Ergebnis einer außergewöhnlichen Dacharchitektur. In sämtlichen Wohnräumen liegt heller, marmorierter Fliesenboden mit Fußbodenheizung. Das Bad ist ebenfalls modern eingerichtet mit Hängeschränken und raumhoch gefliest. Eine begehbare Dusche im großen Badezimmer und ein ansprechendes Lichtkonzept vervollständigen den guten Eindruck.

Die hochwertige Einbauküche in L-Form ist zweckmäßig ausgestattet und hat einen direkten Zugang in einen relativ großen Vorratsraum.

Die großen Fensterelemente der Balkone sind allesamt mit elektrischen Markisen versehen.

Bei der Heizung handelt es sich um eine SOLVIS-Gasbrennwertanlage, sie wurde 2012 eingebaut. Die Wassererwärmung (und Heizung) wird zusätzlich durch eine Solaranlage unterstützt.
Entdecken Sie den charmanten Ort Inzlingen, eine kleine Gemeinde mit einem malerischen dörflichen Charakter im äußersten Südwesten Deutschlands. Mit einer Einwohnerzahl von ca. 2.500 Personen bietet Inzlingen eine einladende Atmosphäre und eine enge Gemeinschaft, die das Leben hier besonders lebenswert macht. Inzlingen liegt im sogenannten Dreiländereck, wo Deutschland, die Schweiz und Frankreich aufeinandertreffen, direkt an der Schweizer Grenze. Diese einzigartige geografische Lage macht Inzlingen zu einem idealen Ausgangspunkt für Entdeckungsreisen in die umliegenden Regionen. Von hieraus können Sie problemlos die vielfältigen kulturellen, kulinarischen und landschaftlichen Schätze der drei Länder erkunden. Apropos kulturelle Schätze, so ist das Wahrzeichen von Inzlingen ein Wasserschloss aus dem 15. Jahrhundert. Inzlingen selbst wurde urkundlich erstmals im Jahre 1228 erwähnt.

Die Grenzregion um Basel profitiert maßgeblich von der Ansiedlung einiger der weltweit größten Pharmakonzerne, was attraktive Arbeitsplätze schafft. Auch der Bedarf an Pflegekräften ist in der Region sehr hoch. Die allgemein starke wirtschaftliche Dynamik macht die Grenzregion insgesamt äußerst interessant. Viele Bewohner aus den benachbarten Gemeinden und insbesondere aus Inzlingen pendeln täglich in die Schweiz zur Arbeit.

Trotz seiner dörflichen Größe bietet Inzlingen eine gute, nahezu lückenlose Infrastruktur. Die Grundversorgung mit Bäckerei, Metzgerei, Lebensmittelgeschäft, Apotheke, Friseur, Fußpflege, Blumengeschäft, zwei Arztpraxen und einer abwechslungsreichen Gastronomie ist gegeben.
Weitere Einkaufsmöglichkeiten und Dienstleistungsunternehmen befinden sich in den nahe gelegenen Städten Lörrach, Weil am Rhein, Rheinfelden und Grenzach sowie in der schweizerischen Nachbarschaft Riehen und Basel.

In Inzlingen gibt es zwei Kindergärten mit Kleinkindbetreuung, einen Waldkindergarten, die Krabbelgruppe „Mäuslehäusle“ sowie eine Grundschule. Weiterführende Schulen befinden sich in den erwähnten Nachbarstädten. Das Vereinsangebot ist sehr groß, wobei der Fokus gerade für Familien gesetzt wird.

Unsere Maisonettwohnung ist nur 200 Meter von der Schweizer Nachbargemeinde Riehen und damit vom Grenzübergang Inzlingen/Riehen entfernt. Dort befindet sich auch schon die Bushaltestelle.
Ein Kleinbus der Schweizer Verkehrsbetriebe fährt von hier aus direkt zur Straßenbahnlinie in Riehen. Die Straßenbahn verkehrt im 10- Minutentakt zwischen Basel und dem Grenzübergang nach Lörrach-Stetten.

Wenn Sie also auf der Suche nach einem ruhigen und doch gut vernetzten Ort zum Leben sind, der Ihnen ein authentisches und vielfältiges Lebensgefühl bieten soll, dann ist Inzlingen genau der richtige Wohnort für Sie. Kontaktieren Sie uns, schauen Sie sich die Immobilien an, besuchen Sie Inzlingen und lassen auch Sie sich von der schönen Lage des Wohnorts überzeugen.
Die Wohnung ist leerstehend und kann jederzeit besichtigt werden.

Die Immobilie wird Ihnen ausschließlich von ALTMANN Immobilien GmbH angeboten.
© 2025 ALTMANN Immobilien GmbH onOffice Software